城陽市寺田深谷 新築戸建
◆2026年5月建築予定の新築戸建
◆家族をゆるやかにつなぐ立体感のある平屋
◆セカンドライフまで永く愛せる和モダンスタイル
◆南向き、前面道路約6m
◆小・中学校まで15分圏内
-
ローンシミュレーションこの物件を購入した場合の、月々の支払い価格の一例です。借り入れを保証するものではございません。
- 返済期間
-
- 金利
-
- ボーナス時の増額(1回分)
-
- 借入金額:
-
- 頭金:
-

- 毎月の返済額:
(※元利均等方式 金利5.00%まで ※返済年数5~50年まで入力できます)
(※ボーナスは年2回で計算しています。1000万円まで入力できます)
(※物件購入時、その他諸費用が発生する場合がございます)
情報の見方担当者のコメント クラッセ住宅販売株式会社

- 2026年5月建築予定の新築戸建!家族をゆるやかにつなぐ立体感のある平屋。セカンドライフまで永く愛せる和モダンスタイルです。キッチンの床にはフロアタイルを採用し、デザイン性と日々のお手入れのしやすさを両立。上品かつ機能的なキッチンです。LDK の梁上には間接照明を仕込みました。ふんわりと広がる光が空間全体をやさしく包み込み、落ち着いた雰囲気をつくり出してくれます。LDK の扉はすべてハイドアに。パールグレーの落ち着いた色味が、空間にさりげない深みを与えてくれます。ソファ周辺の壁・天井にはランダムピッチの羽目板を施しました。壁から天井へと続く木目が、空間をより開放的に見せてくれます。このお家の主役となるような、目を引く素材感です。南向きのため陽当り良好!前面道路約6mございます!深谷小学校まで徒歩約4分ですのでお子様の通学も安心です!土地探し・中古物件・査定・資金計画・オシャレな注文住宅・リフォーム・インテリアはクラッセ住宅販売にお任せください。狭小・3階建・ローコスト住宅もご相談いただけます。宇治・城陽近辺の物件多数ございます。お気軽に0120-339-330までお問合せください。
物件概要
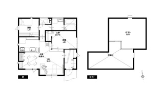
【新築一戸建】 物件番号:101097466 情報更新日:2026年04月20日 次回更新予定日:2026年05月04日所在地 京都府城陽市寺田深谷64-358 交通 間取り/詳細 2LDK/
LDK 18.2帖 1室/洋室 6.0帖 1室/洋室 4.9帖 1室/その他 13.7帖 1室建物面積(坪数) 66.80㎡(20.2坪) 価格 4,560万円 駐車場/月額料金 -/- 土地の敷金/保証金 -/- 借地料/借地期間 -/- 土地権利 所有権 土地面積(坪数) 135.92㎡(41.11坪) 傾斜地部分面積 - 路地状敷地 - 私道負担面積/セットバック -/無 高圧線下面積 - 地目/地勢 宅地/- 接道状況 一方(南 公道 6.0m 間口 10.0m) 建ぺい率/容積率 50%/80% 用途地域 第一種低層住居専用 都市計画 市街化区域 種別/構造 新築一戸建/木造 階建 1階建 築年月(築年数) 2026年 5月 (予定) 総区画数/販売区画数 -/- 向き 南 現況 未完成 その他の法令上の制限 宅地造成及び特定盛土等規制法/高度地区/容積率最低限度有/日影制限有/絶対高さ制限、道路斜線制限、北側斜線制限、京都府屋外広告物条例、城陽市開発指導要綱、がけ条例、近畿圏の近郊整備区域及び都市開発区域 取引態様/引渡時期 売主/相談 建築確認番号 第ONEX確建山北2520760号 物件番号 101097466 取引条件の有効期限 2026年05月04日 設備条件 - 陽当り良好
- 閑静な住宅地
- フローリング
- ロフト付き
- 都市ガス
- 公営水道
- 公共下水
- 24時間換気システム
- 電気有
- 照明器具付き
- 駐輪場
- バイク置場あり
- 駐車2台可
- 食器洗い乾燥機
- システムキッチン
- バス・トイレ別
- 追焚機能浴室
- 浴室乾燥機
- 洗面台
- 浴室1坪以上
- 独立洗面台
- エアコン
- 床下収納
- TVモニタ付インターホン
- 複層ガラス
備考 深谷小 東城陽中 取扱会社 - クラッセ住宅販売株式会社
- 京都府宇治市宇治壱番128
- TEL:0120-339-330
- 京都府知事 (3) 第13512号
- 公益社団法人 全日本不動産協会
公益社団法人 不動産保障協会
公益社団法人 近畿圏不動産流通機構
※地図上に表示される物件の位置は付近住所に所在することを表すものであり、実際の物件所在地とは異なる場合がございます。
物件お問い合わせ
価格と住所の近い物件
- 城陽市久世南垣内5号地 新築戸建
- 4,900万円 3LDK/94.50㎡
- 京都府城陽市久世南垣内
- 近鉄京都線「久津川」駅 徒歩9分
- 城陽市久世下大谷 中古戸建
- 3,180万円 2LDK/81.25㎡
- 京都府城陽市久世下大谷
- 近鉄京都線「大久保」駅 徒歩12分
- 城陽市平川長筬 一戸建
- 2,990万円 2LDK/71.83㎡
- 京都府城陽市平川長筬
- 近鉄京都線「久津川」駅 徒歩11分
- 城陽市平川浜道裏 中古戸建
- 2,490万円 2LDK/81.79㎡
- 京都府城陽市平川浜道裏
- 近鉄京都線「久津川」駅 徒歩9分
- 城陽市寺田南中芝 中古戸建
- 2,080万円 4LDK/97.20㎡
- 京都府城陽市寺田南中芝
- 奈良線「長池」駅 徒歩18分

















