城陽市寺田深谷 新築戸建
価格
4,560
万円
種別
新築一戸建
間取
2LDK
建物面積
66.80㎡
住所
京都府城陽市寺田深谷64-358
交通
城陽駅
徒歩17分
担当者のコメント
クラッセ住宅販売株式会社
2026年5月建築予定の新築戸建!家族をゆるやかにつなぐ立体感のある平屋。セカンドライフまで永く愛せる和モダンスタイルです。キッチンの床にはフロアタイルを採用し、デザイン性と日々のお手入れのしやすさを両立。上品かつ機能的なキッチンです。LDK の梁上には間接照明を仕込みました。ふんわりと広がる光が空間全体をやさしく包み込み、落ち着いた雰囲気をつくり出してくれます。LDK の扉はすべてハイドアに。パールグレーの落ち着いた色味が、空間にさりげない深みを与えてくれます。ソファ周辺の壁・天井にはランダムピッチの羽目板を施しました。壁から天井へと続く木目が、空間をより開放的に見せてくれます。このお家の主役となるような、目を引く素材感です。南向きのため陽当り良好!前面道路約6mございます!深谷小学校まで徒歩約4分ですのでお子様の通学も安心です!土地探し・中古物件・査定・資金計画・オシャレな注文住宅・リフォーム・インテリアはクラッセ住宅販売にお任せください。狭小・3階建・ローコスト住宅もご相談いただけます。宇治・城陽近辺の物件多数ございます。お気軽に0120-339-330までお問合せください。
外観パース
家族をゆるやかにつなぐ立体感のある平屋
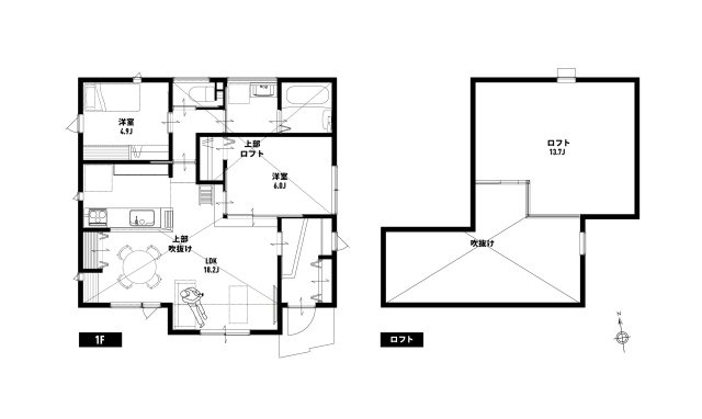
間取り
外観パース
セカンドライフまで永く愛せる和モダンスタイル
外観パース
セカンドライフまで永く愛せる和モダンスタイル
居間・リビング
キッチンの床にはフロアタイルを採用し、デザイン性と日々のお手入れのしやすさを両立。上品かつ機能的なキッチンです。
居間・リビング
ソファ周辺の壁・天井にはランダムピッチの羽目板を施しました。壁から天井へと続く木目が、空間をより開放的に見せてくれます。このお家の主役となるような、目を引く素材感です。
居間・リビング
LDKの扉はすべてハイドアに。パールグレーの落ち着いた色味が、空間にさりげない深みを与えてくれます。
居間・リビング
照明器具はシンプルなデザインで統一。 ダイニングには高さの異なるペンダントライトを2灯配置し、控えめなデザインでありながらも存在感のあるアクセントとなっています。
前面道路含む現地写真
前面道路含む現地写真
前面道路含む現地写真
前面道路含む現地写真
前面道路含む現地写真
前面道路含む現地写真